SANTIAGO CIRUGEDA(España, Sevilla 1971)
Graduado en la ESARAQ (Universidad Internacional de Cataluña)
La practica del arquitecto se percibe muy cercana diría, al
fenómeno del “Street Art” transferido a la arquitectura. Donde el arquitecto
comienza a defender principios de la emergencia y de la posibilidad diaria,
urbana y explicita para generar arquitectura. Esta noción contemporánea de
generar arquitectura usualmente capta objetos y situaciones donde se puede dar
la oportunidad y a través de materiales inusuales, reciclables o efímeros
generan sus intervenciones.
Usualmente esta aproximación es marcada de “Revolucionaria”
y proclama principios de alguna forma “sociales o comunes” donde el arquitecto
proclama el derecho a la arquitectura para todos fuera de las oficinas de planeación
que limitan para este el alcance de la arquitectura. Cirugeda trata de
encontrar la arquitectura donde este nunca se había concebido, en la calle, en
el desperdicio, en los espacios urbanos abandonados, en el residuo urbano. La propagación de sus “Recetas Urbanas”
en la Web y sus talleres, artículos, debates y conferencias son las nuevas
formas que ha elegido el arquitecto para propagar el nuevo bien común que el
propone como arquitectura para todos sin marginalizar. Esta parece ser su nicho
arquitectónico y es allí donde ha sorprendido con esta imagen subversiva e
innovadora de lo que puede llagar a ser la arquitectura.
ANNA HERINGER
(Alemania, Rosenheim 1977)
http://www.anna-heringer.com/
Graduada en la University of Arts and Industrial Design
(Linz, Austria)
La arquitectura de Anna Heringer se ha caracterizado por su
trabajo cercano a las comunidades donde establece sus proyectos. Esta siempre ha
mantenido un desarrollo desde el entendimiento de los grupos que interviene con
sus estructuras. Una claro ejemplo del trabajo de Anna es el METI Handmade
School, localizado en Rudrapur, Bangladesh.
La esuela primaria que utilizan 168 estudiantes locales usa
la madera local como el bamboo, así mismo como técnicas de construcción locales
como lo son el uso de barro y ladrillos de adobe logran hasta un segundo nivel
en la edificación. Lo interesante es entrar en conciencia de que el conocer las
técnicas de construcción y los materiales locales de la construcción llevan a
trascender la arquitectura a un impacto local dentro de estas comunidades.
Plantas
Fachadas
En realidad la distribución del edifico espacialmente se
hace de forma tradicional pero es através de el uso apropiado de los materiales
locales donde la cubierta en bamboo y tejas metálicas se eleva dando el carácter a esta edificación y se
hace necesaria para que el edificio mantenga una temperatura adecuada en sus
aulas. Sus fachadas elaboradas por artesanos de la comunidad otorgan las ventanas
al aire libre en tejidos orgánicos, con diseños característicos de estas
culturas.
La aproximación humanista de Heringer a su arquitectura y la
conciencia de los materiales locales donde, Eike Roswag, su colega, desarrolla
la estructura de los proyectos de Heringer. Hacen que a través de la gestión y
colaboración entre entidades y gobiernos se logre recolectar los 35 000 $USD
que costo el proyecto. La mano de obra local y el trabajo en conjunto con la
comunidad, logran este proyecto icono de la arquitectura sostenible y
humanista.
Cubierta
Interior Cubierta
ALEJANDRO ARAVENA
(Chile, Santiago de Chile 1967)
Graduado en la Universidad Católica (Santiago de Chile,
Chile)
Quinta Monroy (2004)
Alejandro Aravena
Funda Elemental Architects en 1994.
Ha dictado clases como profesor visitante en Harvard.
Miembro del jurado del premio Pritzker y es nombrado
miembro de la RIBA.
Ganan el Curry Stone Prize 2011 por su aproximación y obra
en desarrollo de vivienda popular en Chile.
Se ha caracterizado por sus proyectos arquitectónicos en
educación, institución, museos casas y desarrollo de vivienda popular. Siempre
ha tratado de desarrollar una arquitectura en lugares de escasos recursos y se
caracteriza por lograr un máximo de eficiencia en sus obras y sostener un
diseño contemporáneo.
Su filosofía del “Do Tank” en vez del “Think Tank” cambia
la percepción del diseño al acto mismo esto les ha permitido abordar una nueva
filosofía arquitectónica a su vez de ahorrar costos y tiempo para la concepción
de estos proyectos con presupuestos extremadamente cortos.
La oficina chilena se ha especializado en proveer diseños
de vivienda social en las zonas periféricas de Santiago de Chile con nuevas
filosofías al respecto.
Estos abordan los proyectos reduciendo los costos a un
mínimo y dejando que la mayoría del capital se encargue de comprar el terreno
legalmente y proponen no invertir mayor costo en la producción del diseño sin
embargo dejan que el diseño surge de la construcción misma. Esto les deja
ahorrar costo no en la proyección del diseño sino en el diseño experimental
sobre la marcha de la obra.
Es característico de sus proyectos lograr una alta
influencia política y económica para sacar los recursos necesarios. Son vistos
como grandes activistas en las comunidades para las que construyen.
Quinta Monroy (2004)
El proyecto Quinta Monroy es en realidad una nueva
aproximación hecha por Aravena y Elemental , donde logran dar una nueva
perspectiva de la vivienda social. El proyecto reconstruye vivienda para 100
familias que habían estado habitando el territorio durante 30 años.
Estos logran manejar el presupuesto de 7500$USD por vivienda
y dar un nuevo concepto para este tipo de vivienda.
En realidad lo que hace único y pionero es el hecho que da
una vivienda estructurada en un bloque básico y lo repite a través de la urbanización.
Este deja que las áreas comunes o loa vacíos que propone entre los bloque sean
parte de una estructura portante futura. Es decir las casa se entregan en una
unidad base con la posibilidad de que a medida de que los habitantes de bajos
ingresos, logran expandir sus viviendas a su ritmo financiero y a su propia
necesidad arquitectónica.
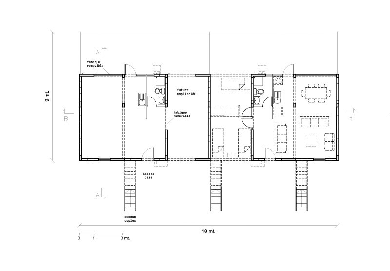
Planta Urbanización
Planta Unidades
Es claro que la nueva noción de vivienda de interés social
logra reducir los costos de compra inicial o un mínimo al dar los módulos para
iniciar un plan de vivienda que el cliente adapta en el tiempo a su disposición
y recursos. Allí lo verdaderamente contundente del proyecto, este tomo en
consideración única y exclusiva cada una de las familias y deja que el fenómeno
de emergencia tenga un plan de expansión futura a medida que se desarrollan las
viviendas, situación única en un proyecto.
Los materiales y el tipo de construcción en realidad son los
sistemas clásicos de construcción de placas y pantallas en concretos y
separaciones en ladrillos. Son los
vacíos en el diseño los que dejan que las zonas comunes de la construcción
evolucionen a favor de las necesidades de la comunidad que las habita.





















No hay comentarios:
Publicar un comentario